株式会社クリフ > 物件一覧 > オープンレジデンシア春日原 > 物件詳細
西鉄『春日原』駅とJR『春日』駅のWアクセス可能!西鉄『春日原』駅から西鉄『西鉄福岡』駅までは特急利用で約10分でアクセス可能、JR『春日』駅からJR『博多』駅までは約15分でアクセス可能と福岡市中心部へのアクセスの良さが魅力です!物件から徒歩3分圏内にスーパーやコンビニがあり便利な立地です♪保育園、小学校、銀行、病院なども徒歩圏内に揃っております!最上階・角部屋で各所に窓があり採光も良しですね☆











(※元利均等方式 金利5.00%まで ※返済年数5~50年まで入力できます)
(※ボーナスは年2回で計算しています。1000万円まで入力できます)
(※物件購入時、その他諸費用が発生する場合がございます)
| 所在地 | 福岡県春日市春日原北町3丁目4-1 | ||
|---|---|---|---|
| 交通 | |||
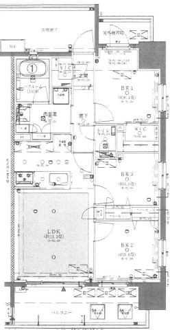
| 間取り/詳細 | 3LDK | ||
| 専有面積/バルコニー面積 | 65.53㎡/10.53㎡ | ルーフバルコニー面積/テラス面積/専用庭面積 | -/-/- |
| 価格 | 5,400万円 | ||
| 管理費 | 10,600円 | ||
| 修繕積立金 | 4,600円 | 修繕積立基金 | - |
| 権利金 | - | 駐車場/月額料金 | 空無/- |
| 土地の敷金/保証金 | -/- | 借地料/借地期間 | -/- |
| 土地権利 | 所有権 | 国土法届出要否 | 不要 |
| 用途地域 | 商業 | 地勢 | - |
| 種別/構造 | 中古マンション/鉄筋コンクリート | 向き | 南 |
| 築年月(築年数) | 2024年 8月 (築1年) | ||
| 所在階/階建 | 14階/14階建 | 棟総戸数/販売戸数 | 39戸/- |
| 管理組合有無 | 有 | 管理形態 | 管理会社に全部委託 |
| 管理員の勤務形態 | 巡回 | 管理会社 | - |
| 取引態様 | 一般媒介 | 現況 | 空家 |
| 引渡し | 即時 | 建築確認番号 | - |
| 物件番号 | 91323597 | 取引条件の有効期限 | 2025年11月12日 |
| 設備条件 |
|
||
| 備考 | 西鉄『春日原』駅とJR『春日』駅のWアクセス可能!西鉄『春日原』駅から西鉄『西鉄福岡』駅までは特急利用で約10分でアクセス可能、JR『春日』駅からJR『博多』駅までは約15分でアクセス可能と福岡市中心部へのアクセスの良さが魅力です!物件から徒歩3分圏内にスーパーやコンビニがあり便利な立地です♪保育園、小学校、銀行、病院なども徒歩圏内に揃っております!最上階・角部屋で各所に窓があり採光も良しですね☆ | ||
| 条件(その他) | インターネット月:1,540円 駐車場月:1万3,000円 | ||
| 取扱会社 |
|
||
| QRコード |
このQRコードを読み取ることで、スマホでも物件情報を確認できます。 |
||
※地図上に表示される物件の位置は付近住所に所在することを表すものであり、実際の物件所在地とは異なる場合がございます。
オープンレジデンシア春日原に関するこだわり条件から探す
春日市の町名から探す